- Bedrooms
- Baths
- Sq. Ft.
- Year Built
- Acres
Design Is In The Details.
Offered at$4,500,0002369 Fairview Avenue E #7 Seattle, WA 98102
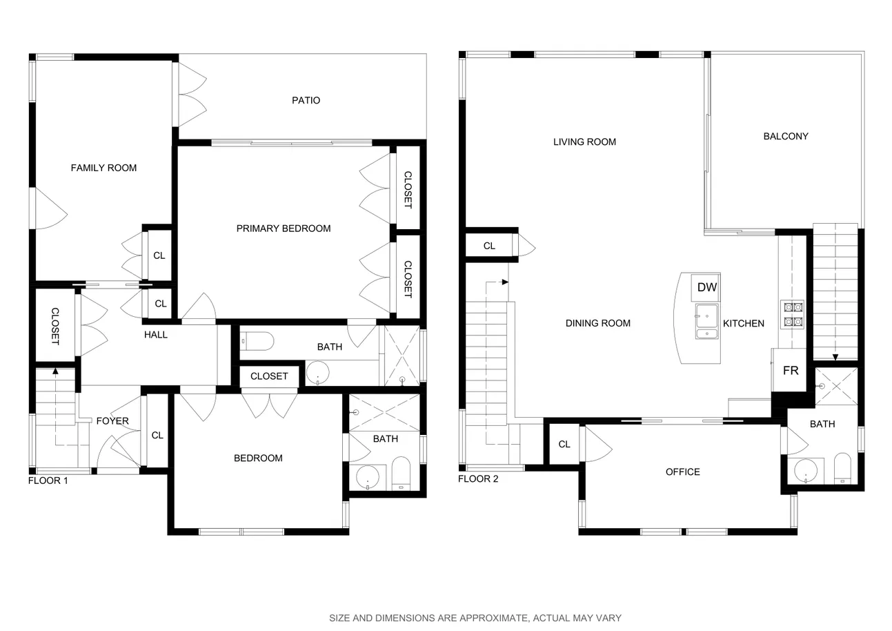
Perched on one of Lake Union’s most prestigious docks, this residence exudes refined Northwest waterfront living. Boasting an expansive great room floorplan with southwest-facing nana doors leading to large decks, along with two ensuite bedrooms and a versatile third space, this home offers flexible effortless living. Custom sea glass and concrete countertops, vertical grain fir accents, and custom Bocci lighting add bespoke charm, while floor-to-ceiling windows showcase captivating views of downtown Seattle. Relax and entertain on the rooftop deck, ideal for gatherings or al fresco living. Complete with secure gated entry, 1-car parking, and 30' moorage, this is waterfront living at its finest.
Extraordinary properties are different at every level.
Property Details
- MLS ID: 2223015
- Bathrooms: 3 (3 three-quarter)
- Builder: Envirotecture
- Building Name: Fairview Landing
- Community: Eastlake
- County: King County
- Elementary School: Buyer To Verify
- Flooring: Concrete, Hardwood
- High School: Buyer To Verify
- Interior Square Footage: 1,800
- Junior High School: Buyer To Verify
- Lot Size: 40 x 55
- Lot Size Sq. Ft.: 2,247
- Lot Style: Adjacent to Public Land, Paved
- Property Subtype: Residential
- Style: Northwest Contemporary
- Year Built: 2010
- Web ID: ZC28VG
Amenities
- Site Features: Cable TV, Deck, Dock, Fenced-Partially, Gas Available, Gated Entry, High Speed Internet, Moorage, Patio, Rooftop Deck
Additional Highlights
- Appliances That Stay: Dishwasher(s), Double Oven, Dryer(s), Disposal, Refrigerator(s), Stove(s)/Range(s), Washer(s)
- Bus Line Nearby?: Yes
- Exterior: Wood
- Fireplace Features: Gas
- Roofing: Flat
- View: City, Lake, Mountain(s), Territorial
- Water Source: Public
Taxes and Fees
- AssociationFee: $250
- Taxes (Est): $22,624
- Taxes (Year): 2023
Floor Plans


Location
2369 Fairview Avenue E #7, Seattle, WA 98102Get Driving DirectionsContact Us
